Домокомплект по проекту "Flathouse"
Строительство домокомплекта по проекту "Flathouse".
Проект реализован в августе 2023 г.
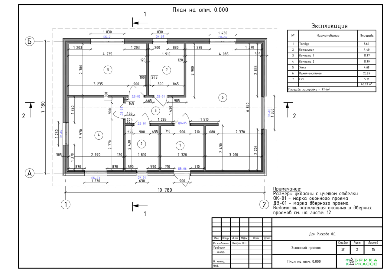
В данном проекте реализовано 2 комнаты площадью 14,94 м2 и 15.2 м2, кухня гостинная 25,92 м2, санузел и техническое помещение.
Контакты
8(800) 500-16-54
8(978) 709-95-54
8(978) 709-95-60
rsu@teus-company.com
г. Севастополь, ул. Молодых Строителей 2, пом. 24
Связаться с нами
